강릉 시내 중심가! 바쁜 삶의 쉼표!!
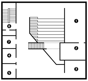
1. 안내 Information
2. 좌석 Seat
3. 화장실(남) Toilet(MEN)
4. 화장실(여) Toilet(WOMEN)
5. 비상구 Exit
6. 엘리베이터 Elevator


타입 : 발표공간
면적 : 231㎡
용도 : 발표, 공연, 전시
대관 : 오프라인 대관신청
최대 50명 사용 가능한 공간으로 공연, 발표, 전시 등을 할 수 있는 공간입니다.
1. 사무실 Office Room 202호
2. 다용도실 Utility Room 203호
3. 사랑방 Reception Room 204호
4. 화장실(남) Toilet(MEN)
5. 화장실(여) Toilet(WOMEN)
6. 비상구 Exit
7. 엘리베이터 Elevator


면적 : 10㎡
용도 : 회의, 강의
대관 : 온라인 사전예약
회의 및 강의가 가능한 공간입니다.
1. 전시장 Exhibition
2. 화장실(남) Toilet(MEN)
3. 화장실(여) Toilet(WOMEN)
4. 비상구 Exit
5. 엘리베이터 Elevator


타입 : 전시공간
면적 : 231㎡
용도 : 전시
대관 : 오프라인 대관신청
전시공간입니다.
1. 공동체공방 1 Workshop 1 403호
2. 공동체공방 2 Workshop 2 404호
3. 화장실(남) Toilet(MEN)
4. 화장실(여) Toilet(WOMEN)
5. 비상구 Exit
6. 엘리베이터 Elevator


면적 : 20㎡
용도 : 회의, 강의
대관 : 온라인 사전예약
회의 및 강의가 가능한 공간입니다.

면적 : 20㎡
용도 : 회의, 강의
대관 : 온라인 사전예약
회의 및 강의가 가능한 공간입니다.