‘명주예술마당’은 시민의 문화예술 활동을 지원하기 위한 복합문화 공간입니다. 강릉에서 활동하는 문화예술인의 개인 작업과 교육공간을 제공합니다.
유리실 (B01호)
발효실 (B02호)
도예실 (B03호)


타입 : 유리공방(금속)
면적 : 84.375㎡
용도 : 유리공방(금속)
대관 : 아카데미 진행으로 대관 불가능
아카데미(교육 프로그램) 수료자에 한하여 스튜디오 공간 유료 대관 진행

타입 : 발효공방
면적 : 56.25㎡
용도 : 발효공방
대관 : 아카데미 진행으로 대관 불가능
아카데미(교육 프로그램) 수료자에 한하여 스튜디오 공간 유료 대관 진행

타입 : 도예공방
면적 : 112.5㎡
용도 : 도예공방
대관 : 아카데미 진행으로 대관 불가능
아카데미(교육 프로그램) 수료자에 한하여 스튜디오 공간 유료 대관 진행
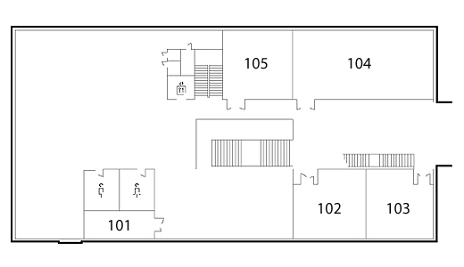
문화공간 (103호)


타입 : 문화공간
면적 : 56.3㎡
용도 : 문화공간
대관 : 아카데미 진행으로 대관 불가능
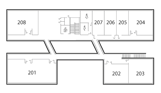
조리실 (201호)
섬유실 (203호)


타입 : 조리실
면적 : 56.3㎡
용도 : 조리실
대관 : 오프라인 대관신청
조리실

타입 : 패션공방
면적 : 45.0㎡
용도 : 재봉 이용 가능
대관 : 오프라인 대관신청
패션공방